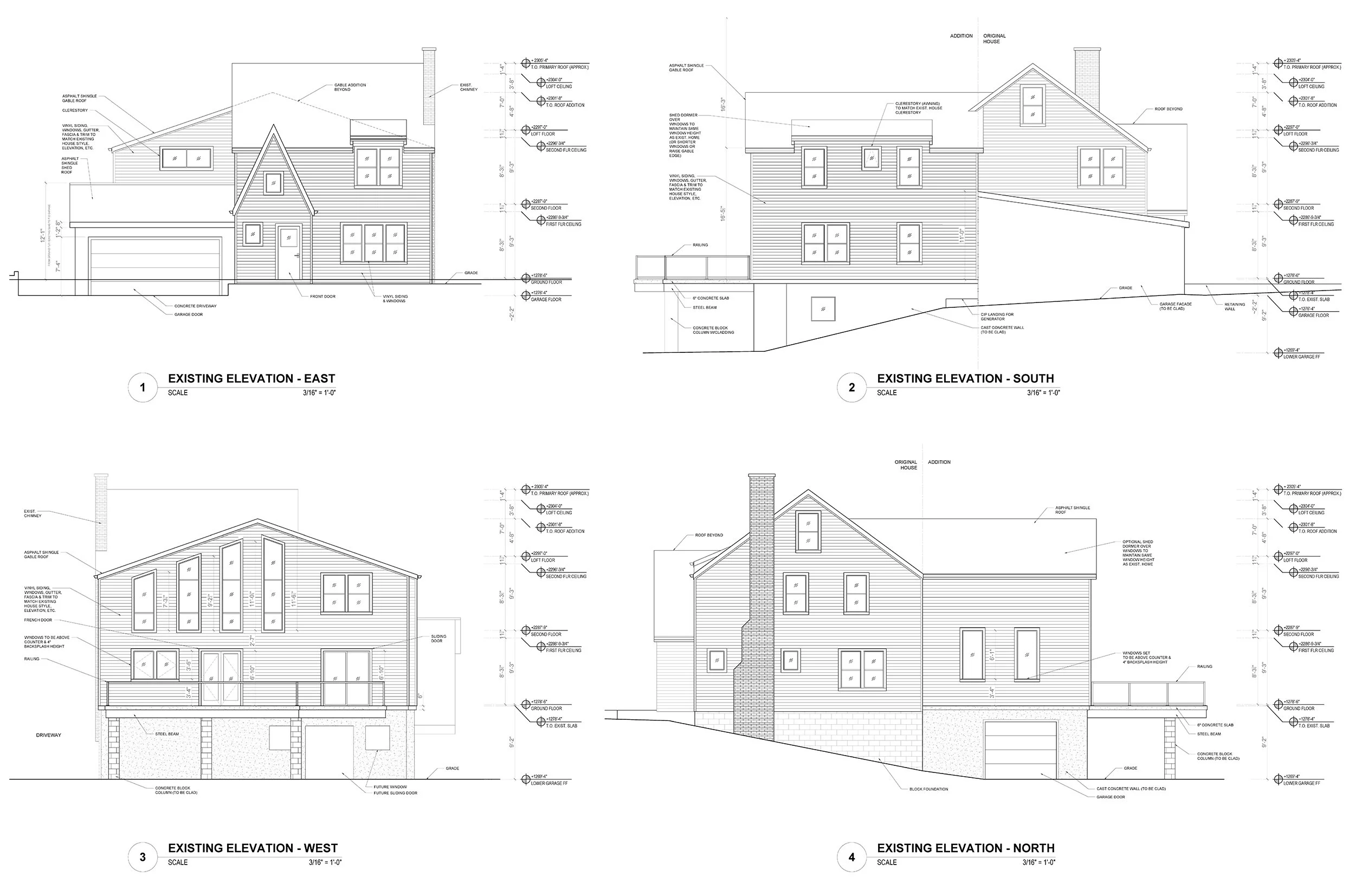
GREEN TREE ADDITION
ARCHITECTURE & DESIGN CONSULTATION | RESIDENTIAL
Pittsburgh, PA | 2025 | Concept Study
[In Progress]
ARCHITECTURE & DESIGN CONSULTATION | RESIDENTIAL
Pittsburgh, PA | 2025 | Concept Study
[In Progress]